견적리스트 배너
59㎡ 양식레스토랑 인테리어
견적번호 30277251201
견적분류 실시간 견적
공사분류 카페/식당
인테리어 수준 보통
진행현황 견적마감
견적분류 일반견적
의뢰자명 강○○
연락처 010-***-****
시공지 주소 서울 노원구  ******
시공지 면적 18 실면적(PY) / 59.4 ㎡
시공예상일 2025-12-22 날짜미정
희망예산 2,800만원 업체협의
파일첨부
요청사항 [양식레스토랑 유럽골목의 느낌]

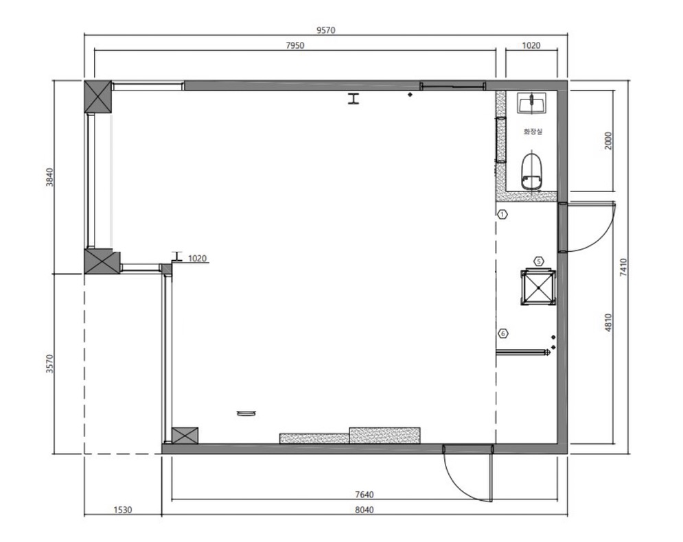
리모댈링 건물 2층 공실입니다.실평수(18평)
오픈주방 습식주방.(트렌치·그리스트랩) 설비해야 합니다.
홀 바닥은 자연석 시공
벽은 유럽식미장 및 자연석 시공

업종은 양식 레스토랑입니다.

그리고 컨셉은 유럽거리 같은 느낌을 주는 인테리어를 원합니다...

(가게명이 프라스어 로 작은골목이라는 느낌) 컨셉 이미지사진은 챗지피티 이용해서 대략적으로 이런컨셉을 원합니다. 외국 골목느낌이 감성이 묻어나는걸 원합니다
번호 견적번호 견적분류 제목 지역 진행현황
21800 30279251201 일반견적 주거공간 182㎡ 아파트 인테리어

경기 수원시

견적마감
21799 30278251201 일반견적 사무/오피스 215㎡ 사무실 인테리어

경기 성남시

견적마감
21798 30277251201 일반견적 카페/식당 59㎡ 양식레스토랑 인테리어

서울 노원구

견적마감
21797 30276251201 일반견적 주거공간 139㎡ 아파트 인테리어

서울 관악구

견적진행
21796 30275251201 일반견적 카페/식당 골프연습장 內 330㎡ 카페 인테리어

서울 강서구

견적마감
21795 30274251201 일반견적 체육/건강 106㎡ 필라테스 인테리어

서울 노원구

견적마감
21794 30273251201 일반견적 카페/식당 플래그쉽 스토어 內 132㎡ 카페 인테리어

경기 파주시

견적진행
21793 30272251201 일반견적 카페/식당 320㎡ 퓨전중식당 인테리어

서울 강남구

견적마감
21792 30271251201 일반견적 기타 231㎡ 촬영스튜디오 인테리어

경기 안양시

견적진행
21791 30270251201 일반견적 여성/미용 36㎡ 네일샵 인테리어

인천 연수구

견적진행